Apartament 4 camere de vanzare in Cluj-Napoca, Gheorgheni ID 3453
Dotari imobil
Descriere imobil
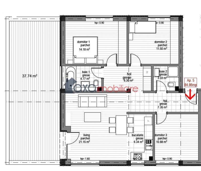
De vanzare apartament cu 4 camere, suprafata utila 85 mp, imobil nou, pozitionat la etaj intermediar (1E/D+P+2E+M), ce dispune de terasa cu suprafata de 37 mp.
Apartamentul este situat pe strada Romul Ladea din cartierul Gheorgheni, intr-o locatie linistita, aerisita, cu spatii verzi.
Imobilul este bine compartimentat si este compus dintr-un living cu 1 bucatarie de tip open space, 3 dormitoare, 2 holuri, 2 bai si 1 terasa.
Se vinde la stadiul de semifinisat: sapa elicopterizata, peretii gletuiti, centrala termica, incalzire in pardoseala sau calorifere, geamuri termopan Veka cu trei sticle si usa antiefractie.
Opinia agentului
''Oferta potrivita pentru cei care pun accent pe calitatea constructiei, locatie si compartimentare. Imobil nou, semifinisat, ce poate fi finisat dupa bunul plac.''



