Apartament 3 camere de vanzare in Cluj-Napoca, Zorilor ID 3896
Dotari imobil
Descriere imobil
Propunem spre vanzare apartament spatios, cu 3 camere, situat intr-o locatie linistita, cu spatii verzi, retras de la strada (cartier Zorilor).
Vecinatati/Zona: Leroy Merlin.
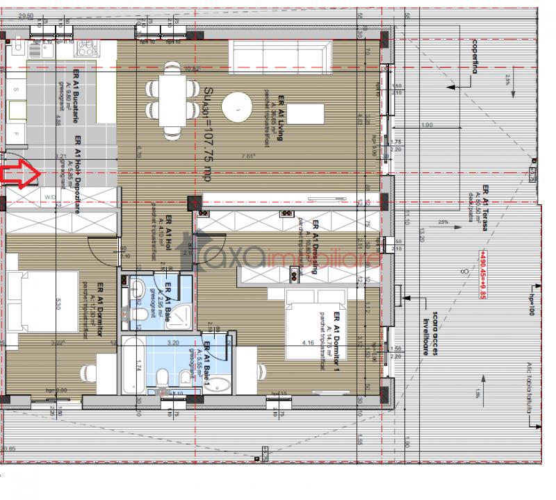
Suprafata apartamentului este de 107.75 mp utili si este pozitionat la etajul 3 al unui imobil nou dispus pe regim de inaltime D+P+2E+ER. Fiind pozitionat la etaj retras, ofera o panorama deosebita asupra zonei.
Imobilul este compus dintr-un hol cu spatiu pentru depozitare, 1 living cu 1 bucatarie, 1 dormitor matrimonial (dispune de baie proprie si dressing), 1 dormitor, 1 baie si 1 terasa (suprafata 80.50 mp).
Detalii:
- se vinde semifinisat (sapa autonivelanta si peretii gletuiti).
- dispune de centrala termica si calorifere (Buderus sau Wiesmann), geamuri termopan cu trei sticle Rehau si usa metalica la intrare.
- finalizarea imobilului va fi in Iulie-August 2017.
- exista posibilitate de cumparare loc de parcare.
- negociabil in functie de modalitatea de plata.
Opinia agentului
"Apartament ce dispune de o suprafata utila generoasa, compartimentat modern, situat intr-o locatie linistita din zona Leroy Merlin, potrivit pentru o familie. De asemenea, imobilul dispune de o terasa superba."



