Apartament 2 camere de vanzare in Cluj-Napoca, Gheorgheni ID 4610
Dotari imobil
Beton
Descriere imobil
Apartament spatios si semifinisat, situat in Cluj-Napoca, in cartierul Gheorgheni, in zona Bazei Sportive, intr-o locatie frumoasa cu verdeata in jur.
Imobilul este pozitionat la etaj intermediar, intr-un bloc nou cu lift, dispus pe regim de inaltime 2S+P+9E.
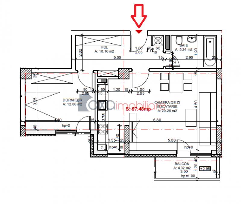
Suprafata utila este de 57.48 mp, fiind compartimentata intr-un living, 1 bucatarie, 1 dormitor, 1 baie, 1 hol + 1 balcon (4.32 mp).
Imobilul are in dotare centrala termica, calorifere, usa antiefractie, geamuri termopan.
Se vinde semifinisat cu peretii gletuiti si tencuiti si cu sapa autonivelanta.
Exista posibilitate de achizitionare garaj subteran (6.000 euro).
Opinia agentului
" Imobil nou si spatios, compartimentat modern, situat intr-o locatie cu verdeata din zona Bazei Sportive din cartierul Gheorgheni. Imobilul se preteaza si pentru investitie. "



